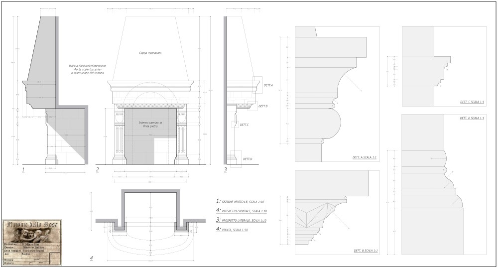
TV SERIES
– 2018
– Role: SET DESIGNER.
– Production Designer: Francesco Frigeri
– Director: Giacomo Battiato
– Productions: Undici Marzo, Palomar.

Study concept of the abbey for CGI

3D model for the labyrinthic Library



Concept view for the Library stairs



3D Project for the Library writing desk – Back











