– Role: ASSISTANT ART DIRECTOR.
TV SERIES – 2019
– Production Designer: Domenico Sica
– Director: Daniel Percival
– Production: Lux Vide s.p.a.
DESIGNS FOR SET DRESSING
HANDMADE DESIGNS USED ON SET







3D CONCEPT MODEL FOR THE LEONARDO’S CRANE SEQUENCE ON THE DOME OF SANTA MARIA DEL FIORE
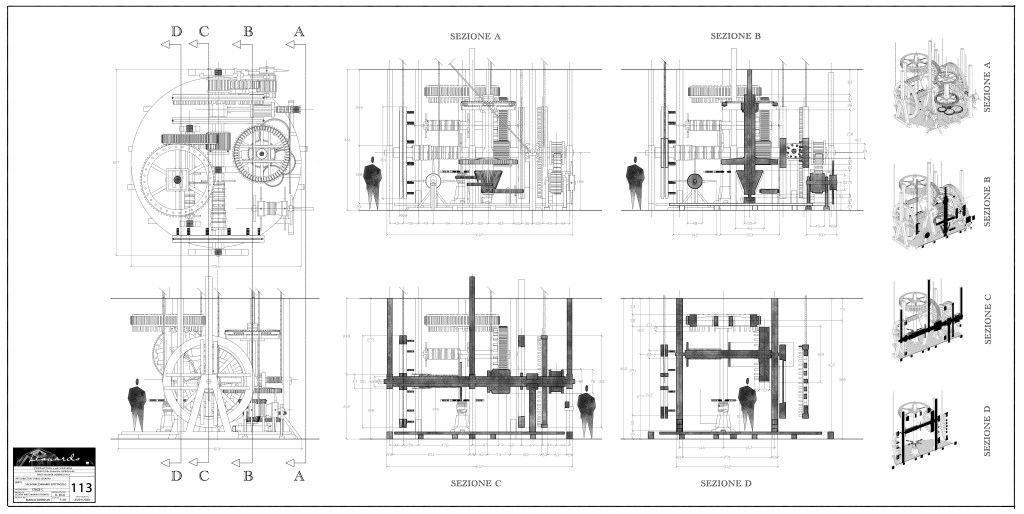
CONCEPT AND PROJECT FOR THE LEONARDO’S UNDERSTAGE THEATRICAL MACHINERY






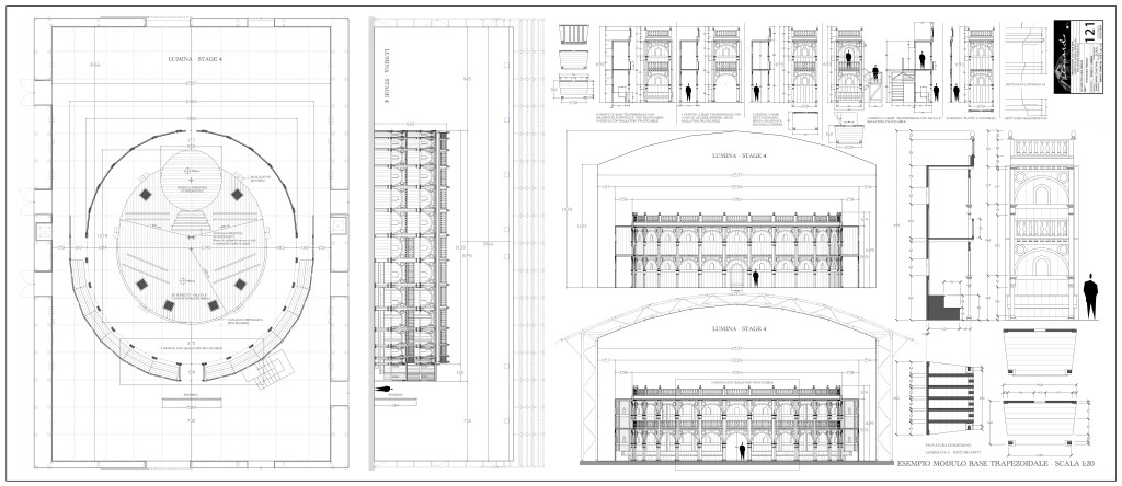
CONCEPTS AND PROJECT FOR THE LEONARDO’S ORPHEO












SET DESIGNS



























CONCEPTS

CONCEPTUAL MODELS







BACKSTAGE PHOTOES
































































































